
液槽密封式高效送风口是洁净室的终端送风装置,在与通风管道对接后,其内部配置的液槽密封式高效过滤器,能有效过滤中央机组输送来的气流,并通过散流板将净化后的气流均匀扩散至房间内的覆盖区域,从而保证房间的洁净度。


产品配置特性:
1.材料:整体1.0mm环保板喷涂,不锈钢散流板。箱体与液槽刀口紧凑式结构相结合,箱体高密封性能,为净化空调系统提供理想的终端过滤装置。
2.PAO检测口:独立PAO测试口,配备发尘与检测接口,通过密封胶套进行保护,快速验证安装可靠性。
3.优质卡扣:配置固定过滤器卡扣,严密锁紧,更换过滤器简单快捷。
4.金属网导流板:进风接口处配导流板,均衡送风,保护过滤器,增强洁净效果。
5.限位凸包:限位凸包独立设计,精准定位过滤器安装位置,四边间隙均匀对位,避免过滤器错位漏风,更高密封性。
6.高效过滤器:配置758W*631D*93H液槽高效过滤器1个,精选优质进口美国贺氏(HV)滤纸,超细玻璃纤维滤料,高效过滤性能,外形美观。
7.风量调节阀:采用镀铝锌材质,结构紧凑,密封性能稳定可靠,可根据房间送风量灵活选用500/1000/1500/2000m³/h风量搭配使用。灵活控制风量,提供多种款式(手动风量调节阀,涡轮风量调节阀,手动五档风量调节阀,电动风量调节阀可供选择)。
8.散流板:喷涂/不锈钢定制选取,散流板多面冲孔送风设计,均匀送风稳定,侧边安装螺丝,简洁美观。
9.配件:配置法兰、吊耳,同风量有侧接管、顶接管款式可选,满足现场不同的安装要求,适应不同的风量。

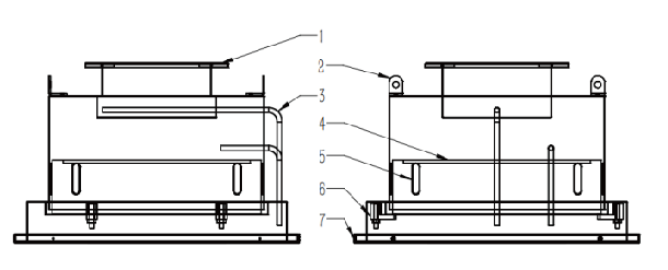
结构示意图:
1.法兰
2.吊耳
3.PAO测试管
4. 液槽高效过滤器
5. 限位凸包
6. 固定压码
7.散流板
产品型号与参数:

注:表中所列规格仅供客户参考,可根据客户要求制作非标尺寸。
联系客服
留言反馈
回顶部